微信扫码

江南小学艺创空间设计分享

更新时间:2016年01月30日17:03:21 点击次数:3633 打印此页 关闭
分享到:


 艺术教育是个古老而全新的话题,环顾历史,古今中外的教育对艺术教育都颇为重视。它以艺术为媒介进行教育,使人的内在品质因素得到全面发展和提高,进而对社会的物质文明和精神文明建设发挥促进作用。


        艺术教育对提高青少年认知能力、创造能力、审美能力,提升心理适调能力、社会交往能力,促进学生的个性化的发展和人格心智的完善有着不可替代的作用。


        江南小学着力为学生创建艺术教育空间,鼓励学生通过不同形式的艺术课程,形成初浅的平衡、空间、构架等一室,逐渐形成螺旋上升的经验结构,塑造学生丰富的感受、感知以及沟通能力。


启智楼

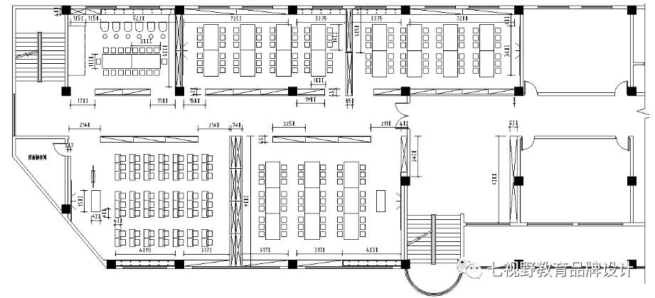
启智二层 美术中心

打破传统教室空间,形成一个既自由又相对独立的美术空间,空间配备着学校的西画、国画、自主体验空间、自主学习空间,让学生们在这里全方位学习体验美术知识。


平面图

课程及配置

走廊

国画教室

版画教室

西画教室


启智三层 音乐中心

        在音乐中心中,使用了大量的吸音材质,保证了音乐空间的学习不受其他外部因素打扰,也保证走廊等其他区域不会受到音乐教室的的干扰。分成各年级的专属音乐教室,让学生们都能很好的专业环境中学习。

        在一些墙面的设计上采用了乐器实物摆放的形式,可以让学生在课余时间自己去了解学习乐器,在墙面还设置了磁性白板,可以用作展示学生作品和上课教学,在空间内还设置了多功能储物柜,可供师生摆放乐器、展品和学生储物。


平面图

课程及配置

一年级音乐教室

一年级音乐教室

三年级音乐教室

三年级音乐教室

五年级音乐教室

五年级音乐教室

合唱排练室


四南楼

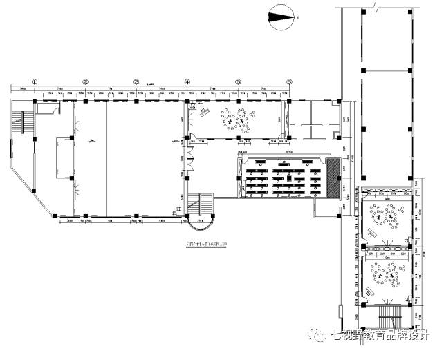
四南四层 美术中心

        整个空间打散重构,重新布局,使用了大量的可移动柜体,可以根据不同的需求去调整摆放,组合成一个个新的空间,既是整体一个大空间,又是一个个相对不受干扰的独立围合教室。

        走廊区域整体呈直线造型,在两侧的柜体上展示美术名画,既美观又不影响空间使用,柜体另一个可以进行储物和学生休息。整体空间颜色偏暖,加入了大量的美术书法元素,让学生在周围环境的影响之下更好的学习。

平面图

课程及配备

国画教室

走廊

走廊

国画教室

陶艺教室

书法教室


四南五层 音乐中心

        音乐中心的多功能厅把原有舞台背景墙拆除,两柱子之间的舞台后墙往后移2米,采用活动幔帘做舞台背景,两边没有了固化的边沿,使前部分全是舞台,形成多重舞台形式,丰富了舞台空间,可以根据不同需要多变舞台的空间形式;观席区域也采用空旷形式,摆放活动座椅,可以灵活使用空间;天花用吸音穿孔板做梁井内局部吊顶,和梁很好的结合。


平面图

课程及配置

多功能厅

多功能厅

古筝教室

二年级音乐教室

二年级音乐教室

四年级音乐教室

四年级音乐教室

六年级音乐教室

六年级音乐教室


        在学校生活中,艺术教育具其特别重要的价值,同时它对于其它学科的学习具有显著的正相关,是其他学科的粘合剂,是倦怠时刻的兴奋剂,使学校生活张弛有度,充满活力。


上一条:北京海淀区教师修进学校附小